【R6.3月価格変更しました!】
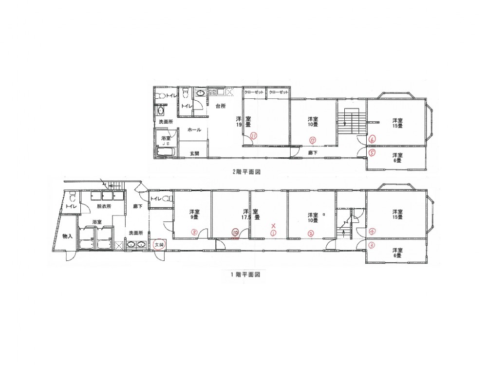
気仙沼市の内湾エリア、南町に建つ物件。宿舎として利用されていたこの物件は、部屋数は10部屋あり、洗面所や浴室、トイレなども複数箇所にあるので、暮らしやすい設備が整っています。大きなホールは食堂などにも使えるそう。また物件近くには飲食店なども多数あるので、気分転換などに出かけるのも良いですね。
一部改修工事のため、入居時期については要相談となります。

物件概要
- 月額希望家賃
- 15万円
- 敷金
- 2ヶ月
- 礼金
- 1ヶ月
- 売却希望価格
- ー
- 家賃売却備考
- ※別途仲介手数料あり
- 物件所在地
- 宮城県気仙沼市南町1丁目
- 物件の種類
- 建物と宅地
- 構造
- 木造二階建て
- 建築年
- 昭和40年
- 敷地面積
- ー
- 延床面積
- 270.20㎡
- 補修の要否
- 補修は不要
- 補修の費用負担
- 協議が必要
- 引き渡しに関して
- 現況引き渡し
- 備考
- ・外国人研修生などの宿舎としての利用も可
・入居については契約の2ヶ月後からとなります。(雨漏り箇所あり。入居者が決まってからのリフォーム工事のため)入居時期については要相談
・駐車場は3台まで無料となります。
設備・SPEC
- 電気
- 引込み済み
- 水道
- 上水道
- 下水道
- 浄化槽
- ガス
- プロパンガス
- トイレ
- 水洗/洋式
- 風呂
- ガス
- 駐車場
- 有(11台)
- 庭
- 無
- ペット
- 可(室外)
アクセス
主要施設等への距離
駅(BRT)1.8km / バス0.1km / 幼稚園・保育所0.5km / 小学校0.7km / 中学校0.6km / スーパー・コンビニ0.5km / 病院1.0km / 郵便局0.8km










