気仙沼市の内湾エリア沿いの河原田エリア。道路そばに建つ二階建てのお家。
室内はリフォームされ、きれいに管理されています。
補修の必要なくすぐに住みはじめることができる、おすすめ物件です。
*インスペクション実施済み物件となります。

物件概要
- 月額希望家賃
- -
- 敷金
- -
- 礼金
- -
- 売却希望価格
- 690万円
- 家賃売却備考
- ※別途仲介手数料あり
- 物件所在地
- 気仙沼市河原田二丁目
- 物件の種類
- 建物と宅地
- 構造
- 木造2階建て
- 建築年
- 昭和54年
- 敷地面積
- 150.59㎡
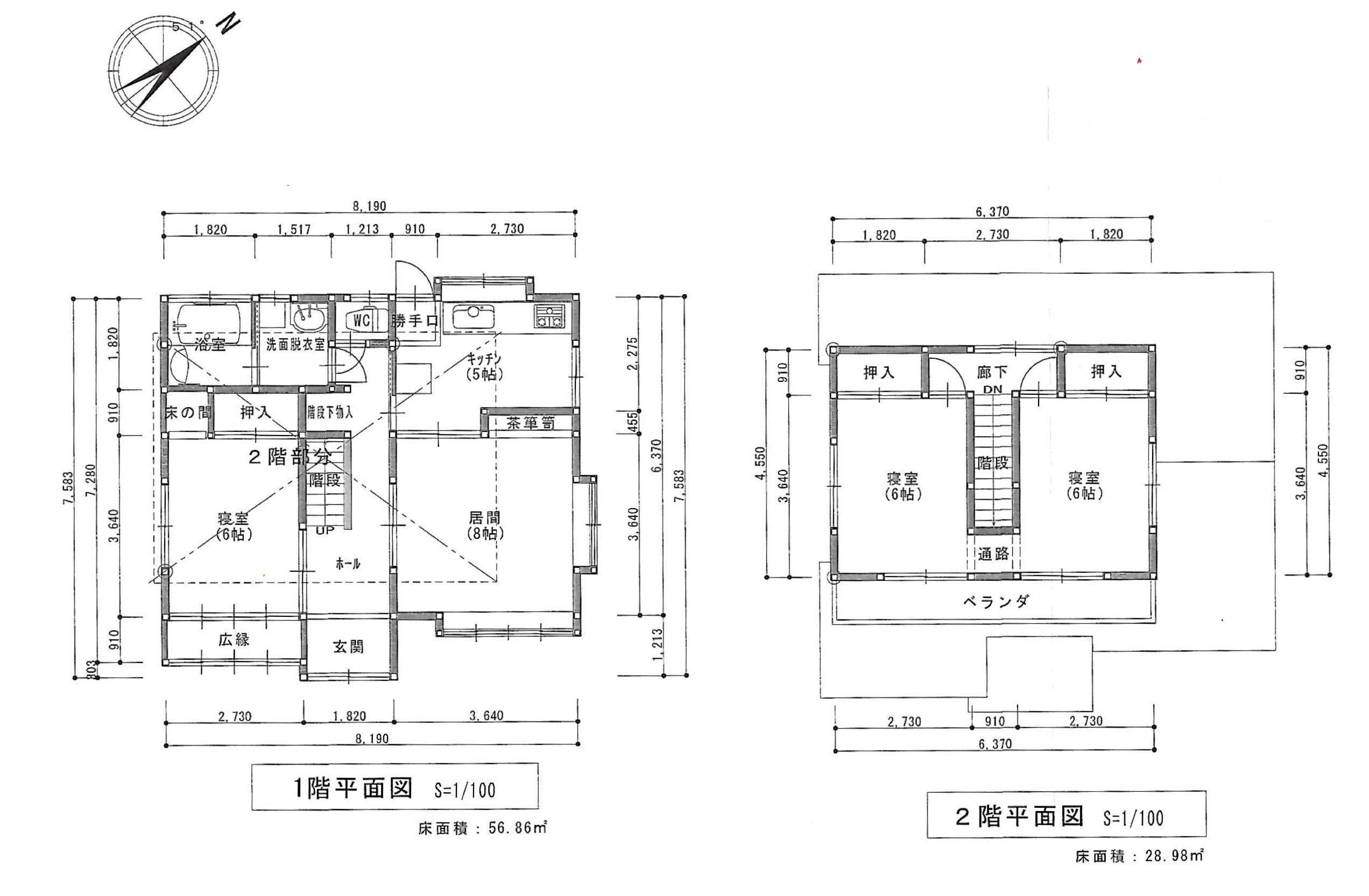
- 延床面積
- 87.18㎡
- 補修の要否
- 補修は不要
- 補修の費用負担
- 入居者負担
- 引き渡しに関して
- 現況引き渡し
- 備考
- ・2012年リフォーム済み
・家財については所有者撤去予定
・インスペクション実施済み
設備・SPEC
- 電気
- 引込み済み
- 水道
- 上水道
- 下水道
- 下水道
- ガス
- プロパンガス
- トイレ
- 水洗/洋式
- 風呂
- ガス
- 駐車場
- 有(1台)
- 庭
- 無
- ペット
- 可
アクセス
主要施設等への距離
駅(BRT)1.7km / バス0.4km / 幼稚園・保育所0.4km / 小学校0.9km / 中学校0.7km / スーパー1.9km / 病院1.0km / 郵便局0.9km









